Stoneroc 240 BOND BEAM
Stoneroc Bond Beam – Monolīta jauda un būvniecības efektivitāte
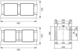
Stoneroc 240 Bond Beam ir augstas izturības betona veidņbloku sistēma, kas radīta dzelzsbetona monolīta izbūvei. Pateicoties inženiertehniskajam dizainam, šī sistēma nodrošina maksimālu konstrukcijas nestspēju ar ievērojami ātrāku montāžu.
Unikālā pazemināto šķērssienu tehnoloģija
Atšķirībā no parastiem blokiem, Bond Beam sērijai ir pazeminātas iekšējās sieniņas, kas nodrošina:
- Divvirzienu monolītu: Betons brīvi plūst gan vertikāli, gan horizontāli, izveidojot nepārtrauktu dzelzsbetona tīklu.
- Stiegrojuma integrāciju: Pazeminājumi kalpo kā vadotnes, kas garantē precīzu horizontālā stiegrojuma pozīciju un pilnu iekapsulēšanu betonā.
- Kvalitatīvu pildījumu: Speciālā forma novērš gaisa kabatu veidošanos, radot blīvu un akustiski izolējošu sienas kodolu.
Plašs pielietojums: No pamatiem līdz pārsedzēm
Sistēma “viss vienā” ļauj no viena veida blokiem izbūvē pilnu ēkas karkasu:
- Nesošās sienas un pārsedzes: Aizstāj dārgās gatavās pārsedzes, izmantojot blokus kā “U-veida” veidņus virs ailēm.
- Alternatīva paneļiem: Piedāvā dzelzsbetona paneļu izturību un ātrumu daudzstāvu projektos bez smagās tehnikas piesaistes.
- Pamati un atbalsta sienas: Izcila noturība pret grunts spiedienu un agresīvu vidi.
- Akustika: Izcila skaņas izolācija (virs 55 dB), kas ideāli piemērota starpdzīvokļu sienām.
Patēriņš Bloku patēriņš 2 gab./tm 10 gab/m² Mūrjavas patēriņš 3,2 kg/tm 16 gab./m² Betona patēriņš 0,026 m³/tm 0,13 m³/m²
Ja Jums interesējošais stoneroc bloku apjoms ir lielāks par 360 gab. (6.paletes), sūtiet cenu pieprasījumu uz bauroc@bauroc.lv. Saziņai neaizmirstiet norādīt savus datus.
Mazākam stoneroc bloku apjomam cenu pieprasījumu jautājiet stoneroc dīleriem.
Informācijas tabula
| Stoneroc 240 BOND BEAM | Daudzums paletē |
|---|---|
| Paletē/gab. | 60 |
| T.sk.griežami stūra bloki | 14 |
| Paletē/kg. | 1500 |
| Kg./gab. | 25 |



